当前的位置:首页 > 光学系统集成 > 自动聚焦显微光机 Auto focus Microscopy 

LAF-AM01-LLC SPECIFICATION 规格

No.

Item

Parameter

1

Main Body

主体

-  1X Tube lens, focal length:200mm 

   1X 筒镜,焦距200mm

-  Camera format: 1, 4/3

   最大支持靶面尺寸:1寸,4/3

-  Camera Mount: C-mount

   相机接口:C-mount

-  Weight: 10Kg

   重量:10Kg

2

Linear motorized revolver

直线物镜切换器

-  4 holes, M26×0.7

   4孔,M26×0.7

-  Include motor driver

   含伺服驱动器

-  Stroke:162mm

   行程:162mm 

-  Repeatability:±3um

   重复精度:±3um

3

Motorized Z axis

电动Z

-  Step motor with driver

   步进电机和驱动器

-  Stroke: ±5.5mm 

   行程:±5.5mm 

4

Auto Focus

自动聚焦 

-  Auto focus sensor: LAF5S

  自动聚焦传感器:LAF5S

-  Static accuracy: 1/4 DOF, Dynamic accuracy: 1/2 DOF

   静态精度:1/4景深,动态精度:1/2景深

-  Focus speed: 8mm/s

   聚焦速度:8mm/s

5

Illumination

照明

-  3W White or blue LED Coaxial light source

   3W白光或蓝光LED同轴光源

-  With analog controller

   带模拟量控制器

6

Environment

使用环境

-  Dustless rank100~1000class

  无尘等级:100~1000class

-  Ambient temperature22±2

  环境温度:22±2

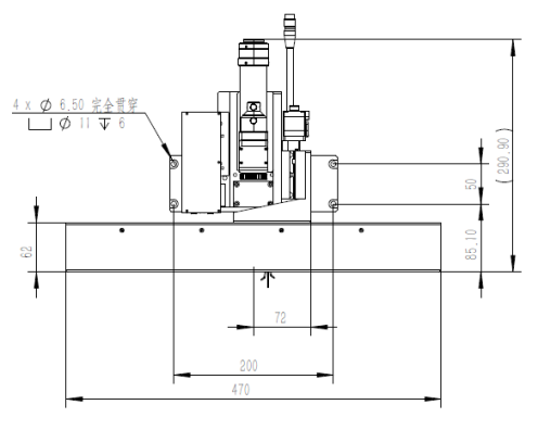
7

Dimension

尺寸

 

 

 
Copyright 2016 深圳市必优机电设备有限公司 粤ICP备16073217号